

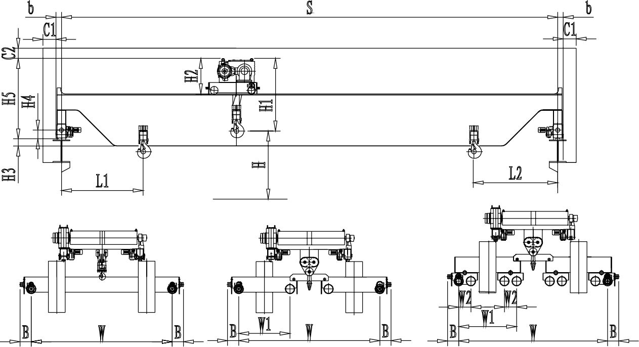
H-起升高度 Hoisting height
V1-起升速度 Hoisting speed
V2-小車運行速度 Tr**eling speed of trolley
V3-大車運行速度 Tr**eling speed of crane
L1-起重機左極限 Left limit of crane
L2-起重機右極限 Right limit of crane
C1-起重機兩端**小極限 Minimum limit of both ends
C2-起重機頂部**小極限 Minimum limit of top of crane
S-起重機跨度 Crane span
H1-起重機小車鉤心到頂部的距離 Distance between core of hook and its top
H2-起重機小車的高度 Height of trolley
H3-起重機底部到大車軌道麵的距離 Distance between the bottom of crane and crane rail plane
H4-起重機緩衝器到大車軌道麵的距離 Distance between buffer of crane and crane rail plane
H5-起重機頂部到大車軌道麵的距離 Distance between the top of crane and crane rail plane
W-起重機**外兩個車輪之間的距離 Distance between two outmost wheels of crane
W1-起重機一角**外兩個車輪之間的距離 Distance between two outmost wheels of one corner of crane
W2-起重機台車兩個車輪之間的距離 Distance between two wheels of trolley
B-起重機**外車輪距離緩衝器端部之間的距離 Distance from the outmost wheel to ends of buffer
b-起重機**端部距離大車軌道之間的距離 Distance from ends to rail of crane
G-起重機整車的重量 Overall weight of crane
K-起重機**輪壓 Maximum wheel pressure of crane
P-起重機總的功率 Total power of crane
1、本產品係列表僅列出了常用的基本的規格起重機,工作**為A5(FEM 2m)時的標準跨度,沒有副鉤的室內用起重機。客戶根據需要可以提出相應的要求。
2、本係列也可以增加副起重機構,也可以增加輕載時速度加倍的設置,一般主副的設置為4:1,也可以根據客戶的要求設定。囚設置副鉤則起重機的總重及輪壓會有所增加。
3、表中的尺寸,重量,輪壓供客戶訂貨時參考,如果客戶的需要條件發生變化,如工作**,速度,起升高度有變化時,相應的參數,尺寸,重量,輪壓等都會發生變化,實際的參數,質量,輪壓以合同的要求為準。
4、表中列出的起升速度,大小車速度為標準值,可以根據客戶的需求做相應的調整。
5、技術參數及尺寸會因為技術的改進或者升級有所變化,如有疑問的話可以和公司技術部聯係。







我公司主要經營範圍:單雙梁橋式起重機、門式起重機、大型工程起重機、架橋機、高空作業車、液壓升降作業平台、液壓升降貨梯、電動平車、懸臂吊、各種型號電動葫蘆等及其零部件的銷售,針對用戶有完善的售後服務團隊,已更**的服務廣大用戶。
公司擁有技術研發隊伍、雄厚的技術創新和產品開發能力:擁有完善的質量保證體係、嚴格的管理製度、強大的生產能力和先進的檢測手段、雄厚的實力。我公司本著"求是創新""開發進取""團結奮進"的精神,以振興民族工業為己任、在廣泛的生產物流領域裏,為客戶提供及時有效的解決方案,為中國經濟騰飛做出積極的貢獻。
公司產品**國內30多個省、市、縣自治區、直轄市、部分產品出口歐盟、美國、日本、韓國、新加波、丹麥、伊拉克、越南、泰國等國家。產品供不應求,廣泛用於機械、冶金、建築、電力、港口、造船、鐵路、化工、物流等領域,為客戶提供**的售前、售中、售後服務與配件儲備供應。產品性能優良、質量穩定可靠、深得用戶好評。歡迎廣大用戶來電谘詢。
專業專注 合作共贏
質量鑄**** 誠信編織未來
手機版|
關注公眾號|

官方公眾號
掃碼手機店鋪


第12年
