JZ係列節能電磁鐵鼓式製動器
製動器安裝尺寸和製動力矩參數符合: JB/ZQ標準,技術要求符合JB/T標準。
主要特點:使用安全可靠;動作頻率高,節能;綠色環保,無石棉襯墊。
使用條件:
環境溫度: -25℃ -40℃
交流380V/50Hz電源。
使用地點的海拔高度不超過2000m 。
使用地點空氣相對濕度不大於90% 。
製動器周圍不得有易燃易炸及足以腐蝕金屬和破壞絕緣的氣體和導電塵埃。
戶外雨雪侵蝕或有腐蝕性氣體和介質應采用防腐型產品。
產品詳情

型號意義

技術參數
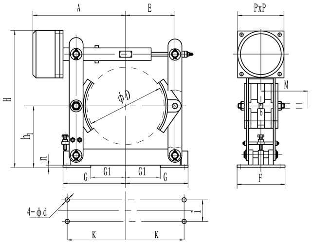
單位:(mm)

注:配用電磁鐵變更不另行通知,大規格電磁鐵配用電控盒較大,須另外放置。
外形尺寸表
單位:(mm)
|
型號 |
A |
b |
D |
d |
E |
F |
G |
H |
h1 |
i |
K |
M |
P |
n |
G1 |
|
JZ-100 |
230 |
70 |
100 |
13 |
165 |
75 |
125 |
300 |
100 |
40 |
110 |
145 |
132 |
6 |
45 |
|
JZ-200 |
290 |
80 |
200 |
17 |
215 |
100 |
208 |
435 |
170 |
60 |
175 190 |
126 |
132 |
8 |
108 |
|
JZ-300 |
385 |
140 |
300 |
22 |
295 |
130 |
290 |
600 |
240 |
80 |
250 270 |
160 |
167 |
10 |
140 |
|
JZ-400 |
505 |
180 |
400 |
22 |
350 |
180 |
350 |
782 |
320 |
130 |
325 |
210 |
243 |
12 |
190 |
|
JZ-500 |
577 |
200 |
500 |
22 |
490 |
200 |
405 |
950 |
400 |
150 |
380 |
250 |
243 |
16 |
225 |
|
JZ-600 |
675 |
240 |
600 |
26 |
560 |
220 |
500 |
1160 |
475 |
170 |
475 |
305 |
271 |
18 |
250 |
注:具體型號、結構外形尺寸保留更改的權利。
手機版|
關注公眾號|

官方公眾號
掃碼手機店鋪

第2年